.
1
17
|
.
1
17
|

| Pszczyńska

Mikołów | PL

Każdy zasługuje na dobra architekturę, pytanie czy każdego na nią stać i czy w ogóle musi być droga. Chcemy uprawiać taka architekturę, która będzie dostępna dla .. ludzi.
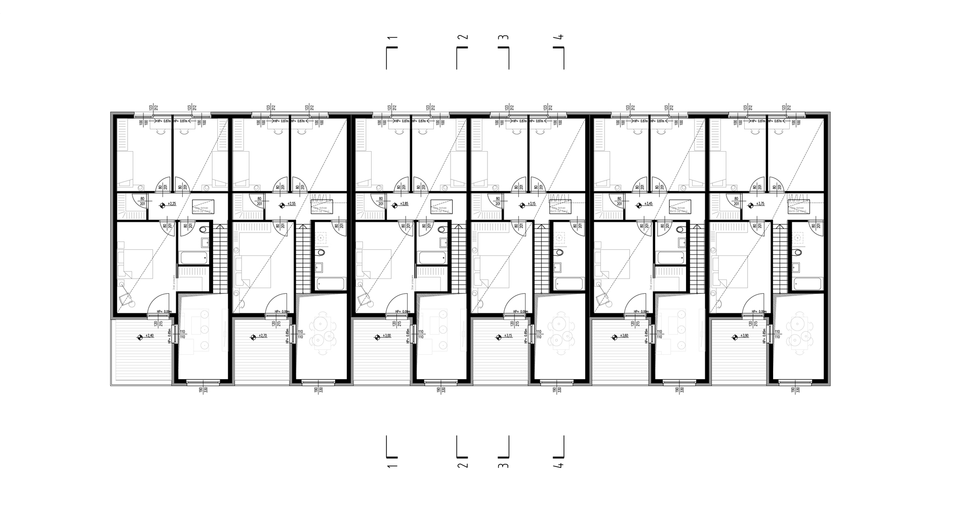
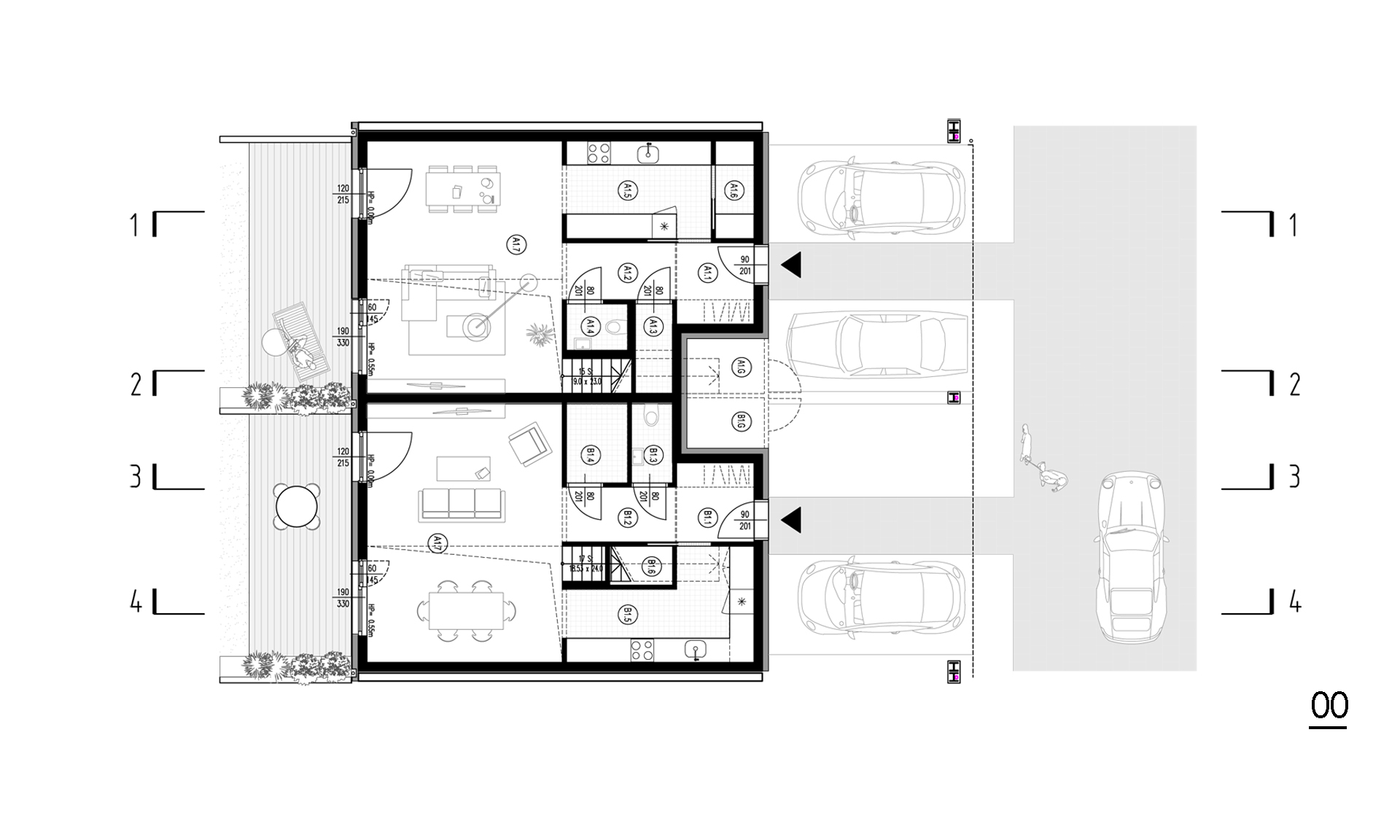
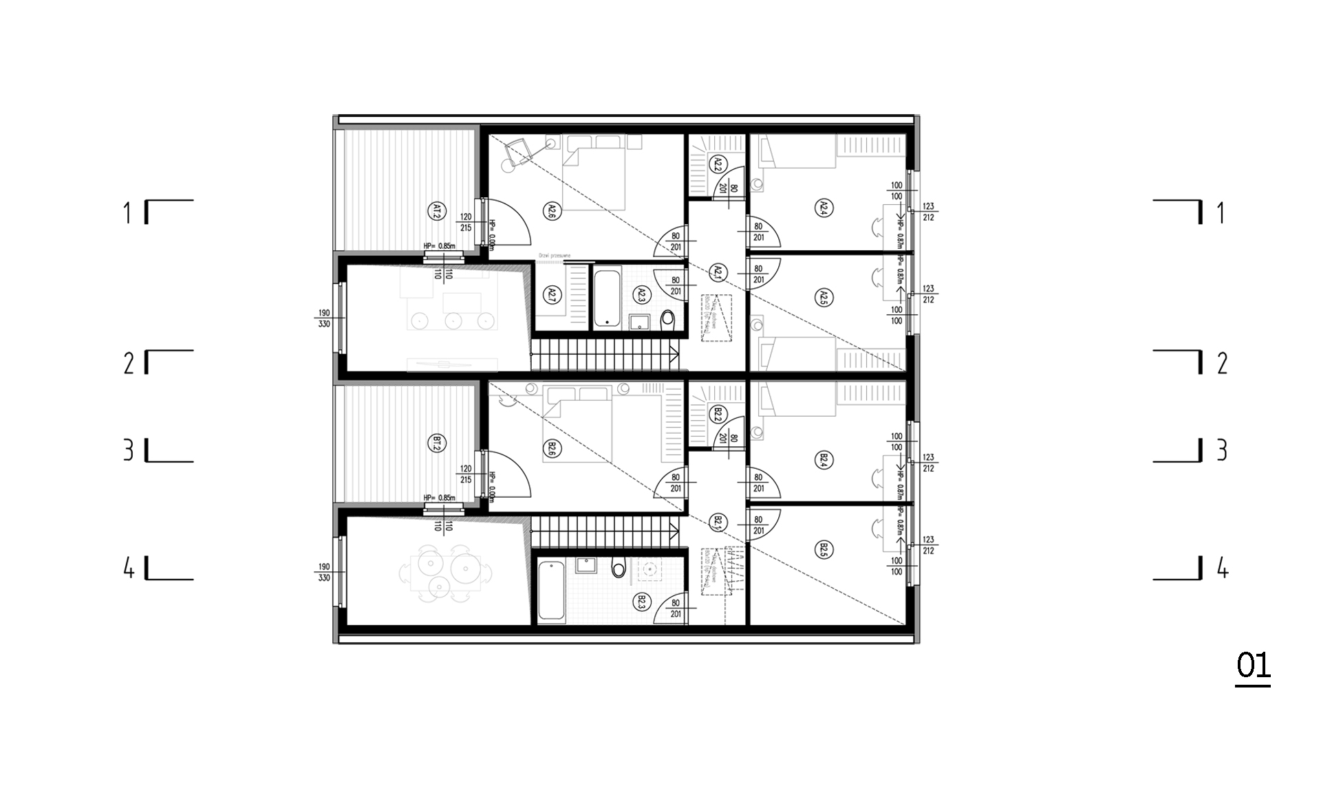
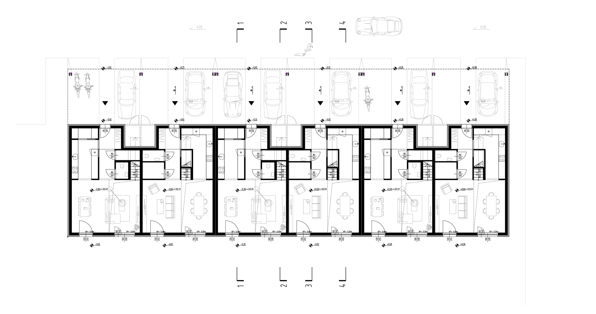
Pszczyńska to model domu w zabudowie szeregowej, który oferuje wysoką jakość przestrzeni, choć ręka silnie trzymana była na budżecie.
Dzięki nietypowej formie dachu, budynek zarówno z zewnątrz jak i wewnątrz jest bardzo dynamiczny. Wysokość zmienia się, zacieśnia by znów uwolnić nas w przestrzeni salonu. Strefa jadalni wyposażona została w wielkie 3,5m przeszklenie, które sprawia, że światło wpływa do całego mieszkania.
Poziom +1 zajmują duże pokoje oraz taras dostępny od sypialni rodziców. Tu tez można zerknąć co dzieje się w salonie.
 
Jesteśmy dynamiczni, taka powinna być także przestrzeń w jakiej żyjemy. Nie dajmy się zamknąć w pudle z przytłaczającym 2.6m. Stać nas na więcej.
Shopping Basket