.
1
16
|
.
1
16
|

| Nowy Świat

Mikołów | PL

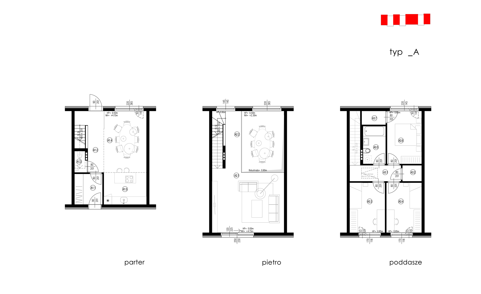
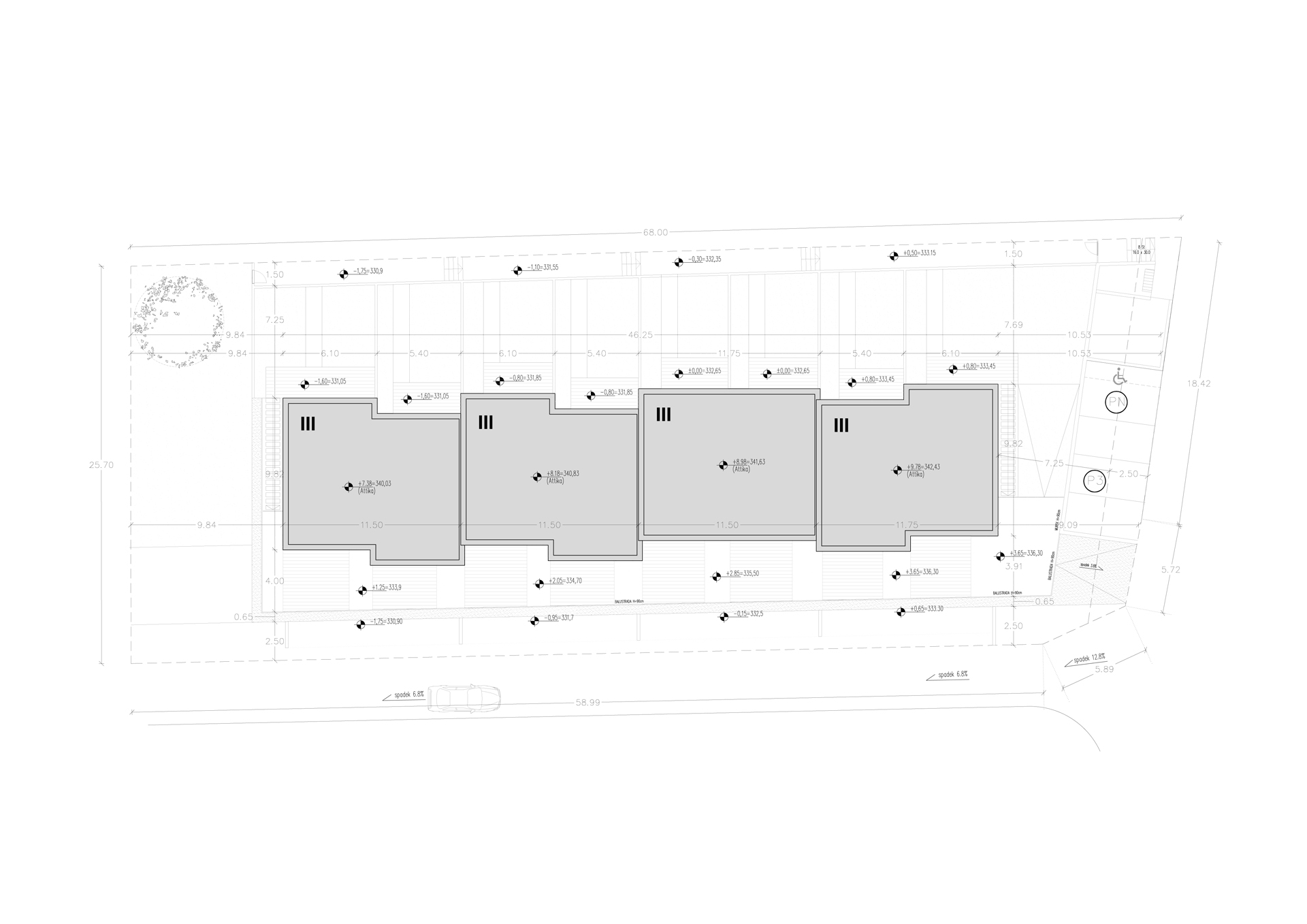
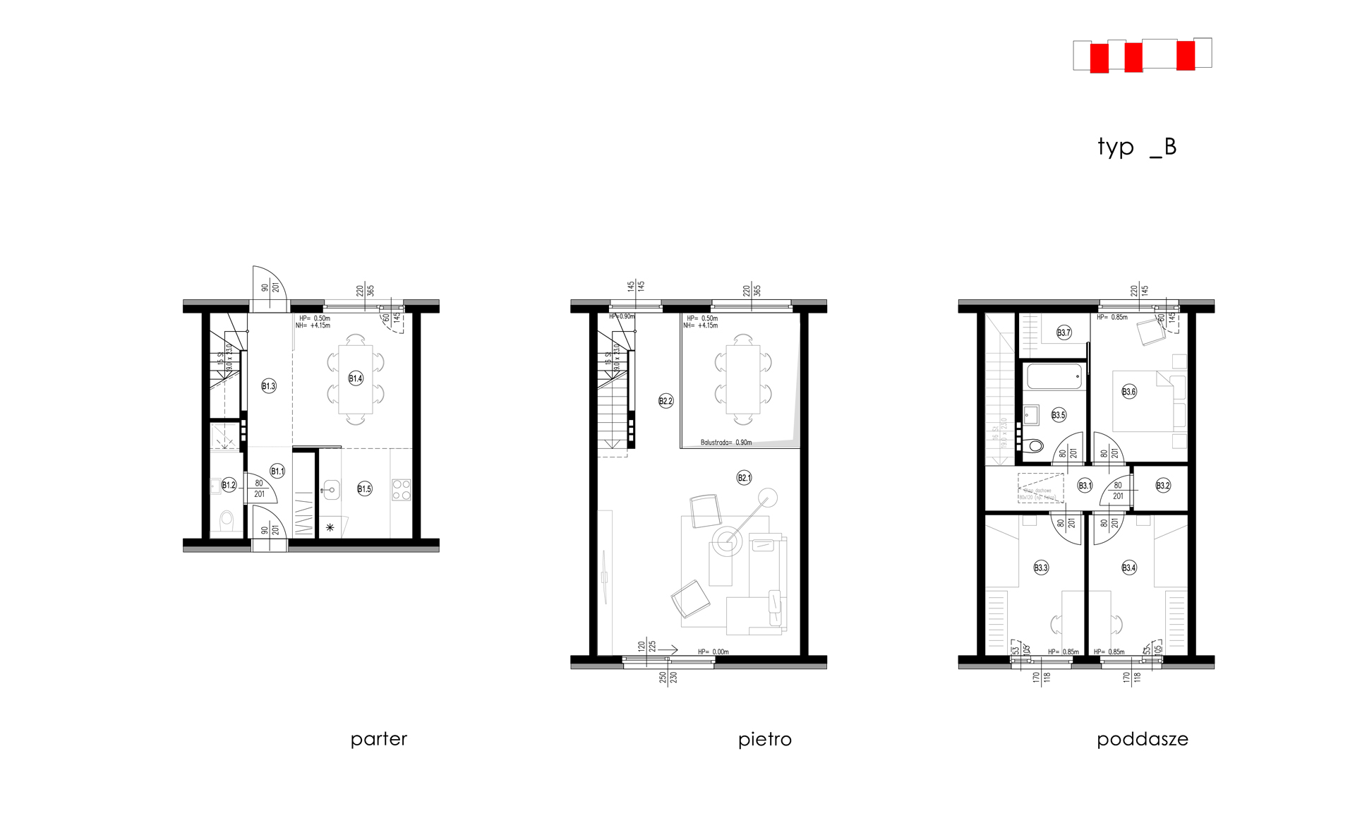
Pomysł na projekt przychodzi często z próby rozwiązania problemu jaki stawia lokalizacja. Działka Nowy Świat oferuje wjazd od strony pd-zach. Stworzenie zabudowy szeregowej z “parkowiskiem” od strony najbardziej nasłonecznionej nie jest rozwiązaniem akceptowalnym. Przykryliśmy parking pasem zielonych tarasów dostępnych z pokoju dziennego na poziomie +1. Poziom 0 zajmuje kuchnia z jadalnią otwartą na dwie kondygnacje, tak, że przestrzeni salony mamy do niej wglad. Umożliwia to dodatkowo penetrację dolnego poziomu przez światło zachodnie. Wysokie na 3,5m otwarcie okienne na parterze pozwala na obserwację ogrodu także z poziomu salonu. To przenikanie się obu kondygnacji definiuje projekt. 
 
Gold is a new Black – to koncept na fasadę. Węgiel, nazywany czarnym zlotem, jest ikoną naszego regionu.
Czarne nigdy nie wychodzi z mody a złoto jest “nową czernią”
Shopping Basket