.
1
19
|
.
1
19
|

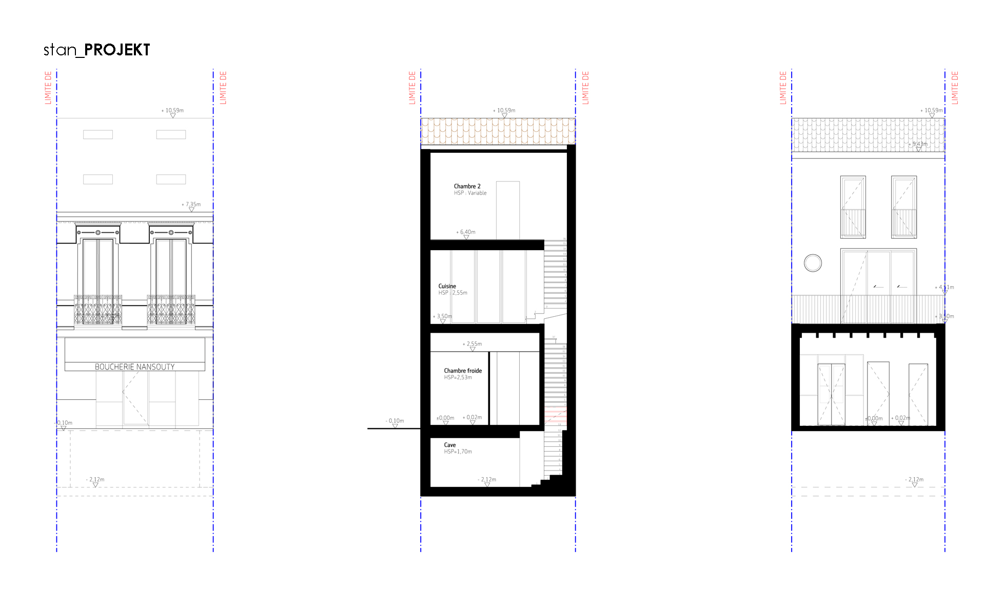
| Butcher house

Bordeaux | FR

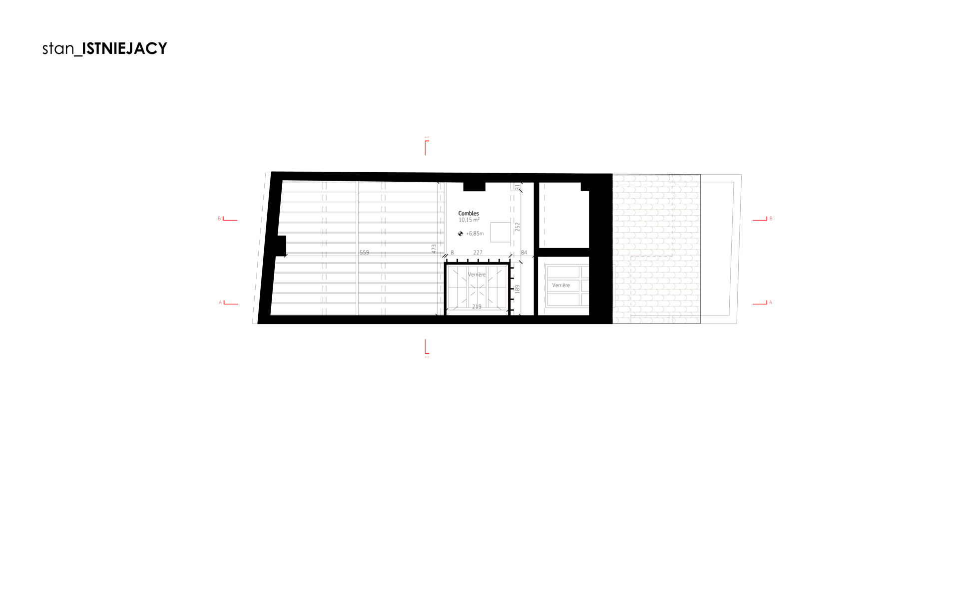
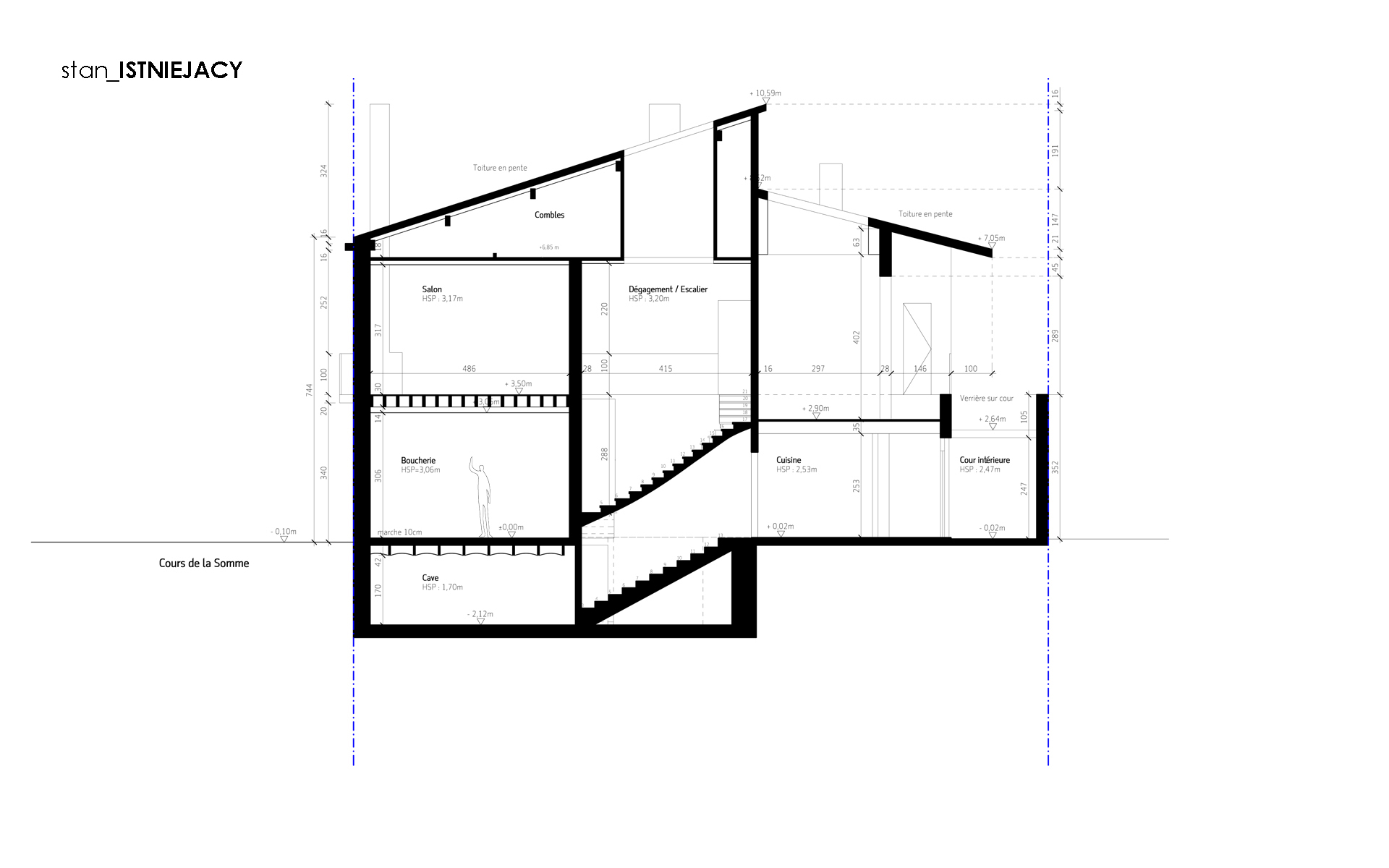
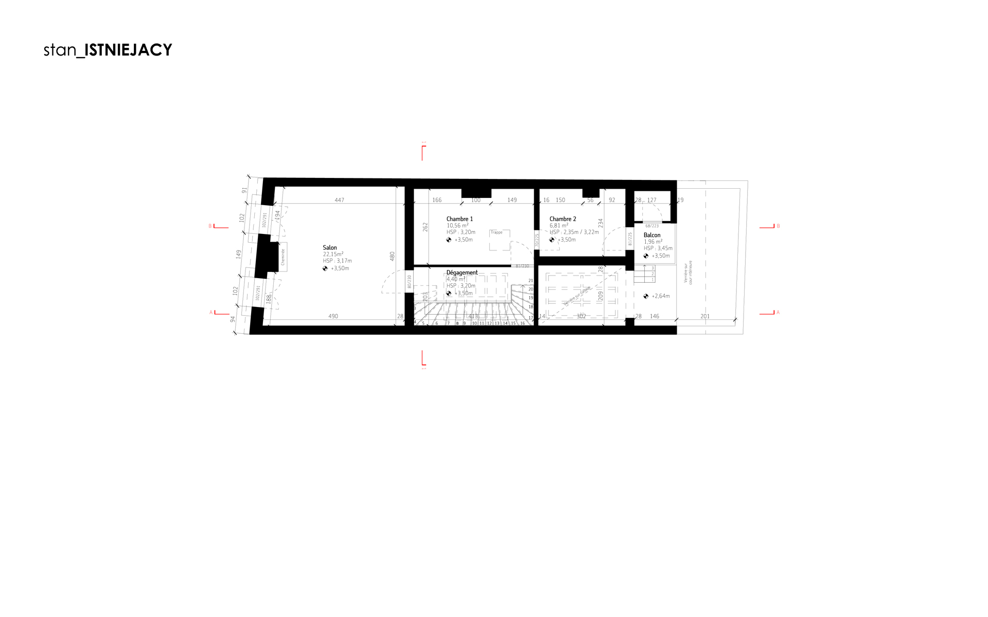
Założenia projektowe: rozbudowa, nieużytkowego poddasza oraz lepsze wykorzystanie przestrzeni. 

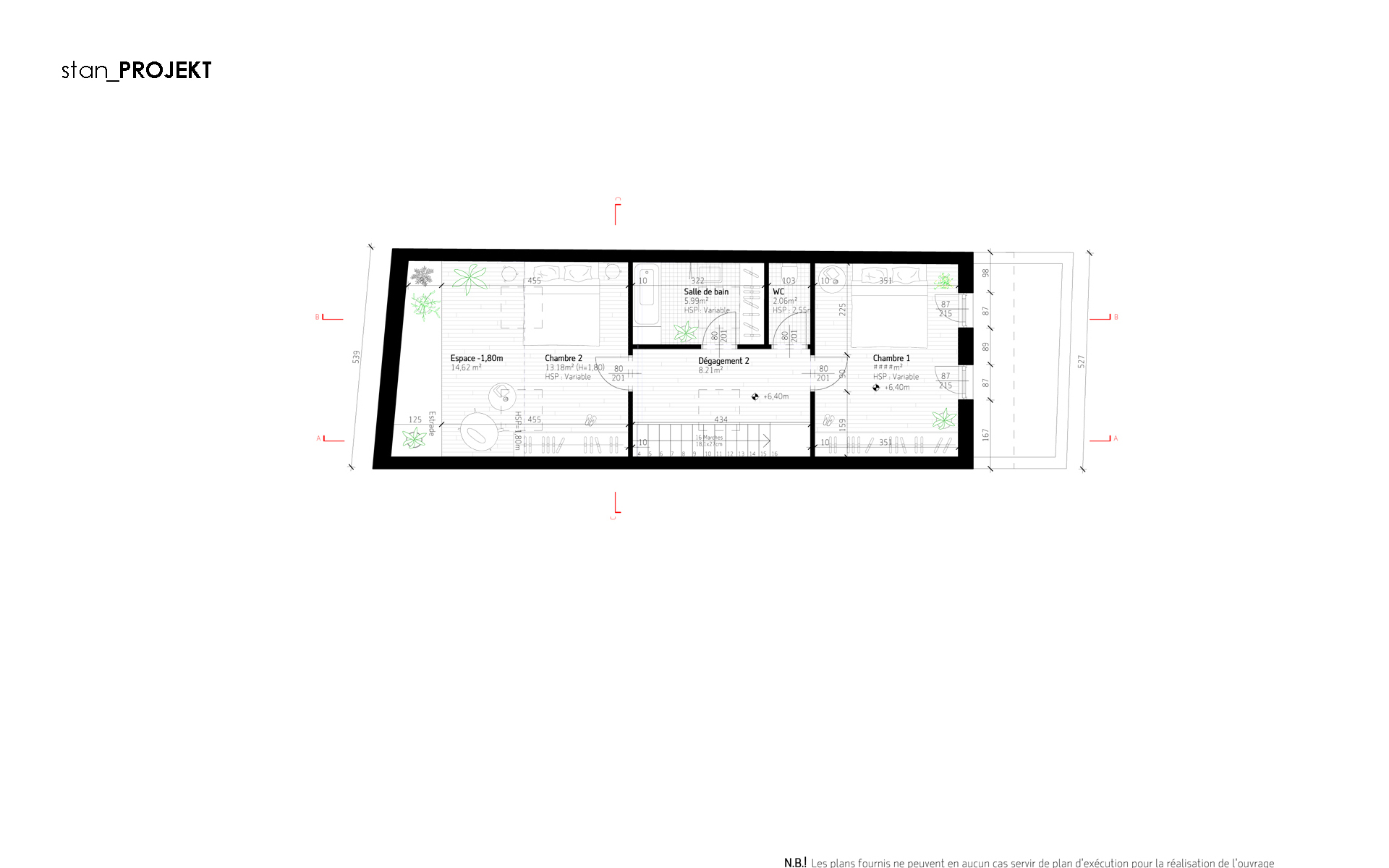
Poziom +1, który stanowił do tej pory całość powierzchni użytkowej został uwolniony od podziałów i ścian. Strefę sypialni przenieśliśmy do nowo urządzonego poddasza (+2), dzięki czemu uzyskując otwartą przestrzeń całej kondygnacji głównej (+1). Jednolita powierzchnia została wyposażona w 3 funkcje: kuchnie, jadalnie z dostępem do szerokiego balkonu oraz salonu. Podział tych stref wyznacza jedynie konstrukcja stropu. Kierunek belek definiuje granice, brak jest ścian oraz podziałów w posadzce, dzięki czemu przestrzeń jest płynna.
Podwyższenie dachu dało możliwość na zaprojektowanie dwóch wielkich sypialni oraz części sanitarnej na poziomie +2.
Shopping Basket